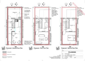
E260 – pl-120-proposed_-_floor_plans