No. 6 Skeffington Street is a charming three-storey, three-bedroom mid-terraced residence extending to approximately 59 sq.m. Ideally positioned just a stone’s throw from all amenities, the property enjoys immediate access to Wexford’s Quays waterfront as well as the town’s bus and rail stations.
This is a recognised heritage property and comes with the added benefit of granted planning permission (dated 10th October 2025) for renovation works.
Planning reference: 20251027W with Exemption Declaration. – Click here to view application.
The property is listed with the Heritage of Ireland: Reg No. 15502001.
Please email info@kehoeproperty.com for the recent conservation report and planner’s report.
A further significant advantage for purchasers is the property’s eligibility for up to €70,000 in Vacant Property Grants — a substantial support for those looking to undertake a restoration project.
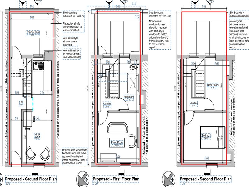
Accommodation:
- Ground Floor: Entrance hallway leading to an open-plan living, dining, and kitchen area.
- First Floor: Large bedroom and bathroom.
- Second Floor: Two additional bedrooms.
To the rear is an enclosed courtyard measuring approximately 8 sq.m.
It is highly recommended, to arrange a suitable viewing time, please contact the sole selling agents, Kehoe & Assoc., at 053 9144393.
| Accommodation | ||
| Entrance Hallway | 6.54m x 1.53m (max) | Concrete ground, walls stripped back, exposed wiring. Door leading through to rear yard. |
| Ground Floor Sitting Room | 6.15m x 2,25m | Open plan leading through to kitchen (excluding rear extension which is intended to be demolished). Concrete ground throughout, fireplace, timber sash windows, electric wiring for central light. |
| Open Alcove leading through to: | ||
| First Floor | ||
| Half Landing | Timber single glazed window. | |
| Landing Area | 1.61m (max) x 1.98m (max) | |
| Bedroom 1 | 3.26m x 3.11m | Timber flooring, large sash window overlooking street side, former fireplace blocked.
|
| Bathroom | 2.98mx 1.5m | Fluorescent light overhead, ample space for refurbishment of a full bathroom. |
| Timber staircase leading to: | ||
| Second Floor | ||
| Landing Area | 1. 63m (max) x 1.85m (max) | Timber single glazed window overlooking rear garden |
| Bedroom 2 | 3.28m x 3.09m | Timber sash window overlooking street side, hatch to attic overhead. |
| Bedroom 3 (potential second bathroom) | 2.98m x 1.49m | Timber flooring throughout, single pain window overlooking rear garden. |
Total Floor Area: c. 59 sq.m / 635 sq.ft
| Outside
Resident street parking Rear courtyard |
| Services
Mains electric Fibre broadband available |
