- Extensive restaurant premises situated in the heart of Wexford town at North Main Street.
- Situated on a busy pedestrianised portion of Wexford’s main thoroughfare adjacent to principal nightlife areas.
- Offering well-presented and substantial accommodation laid out over two floors.
- The tenant will be responsible for local authority rates, buildings insurance, VAT and the usual outgoings.
LOCATION: This fine restaurant premises is situated in Wexford’s town centre, with extensive frontage onto North Main Street. It is directly fronting the pedestrianised portion of the main street in Wexford town street. It is close to the junction between North main street and Monck Street, widely considered to be the principal nightlife area, with amenities including many restaurants and late bars. Monck street is now the first street in Ireland to have a roof cover, covering its entire length with a retractable roof canopy extending over 80 metres in length. This has transformed this area of town.
Wexford is the County Town with an urban population in the region of 20,000 people – (Source: CSO Census 2016). The preliminary results of Census 2022 show that County Wexford’s population has seen a rise of 9.2% since 2016. At the time of the last census County Wexford recorded a population of 149,425. The Central Statistics Office (CSO) has revealed that Wexford has seen a rise to 163,527 or 9.2%. This increase was slightly above the national increase of 7.6%, with Ireland recording a population of 5.1 million as of April 3, 2022.
Wexford has become an increasingly popular location to live, as people seek to escape the crowded capital, and this has combined with an increasing trend towards working from home. Wexford saw one of the highest levels of inward migration since 2016, with 9,487 people opting to move here. It was by far the highest in the south-east, with Waterford gaining 7,564, Carlow 2,807 and Kilkenny 1,756. In fact, Wexford saw the fifth highest number for estimated net migration in Ireland. (Source: CSO Census 2022)
CLICK HERE FOR VIRTUAL TOUR
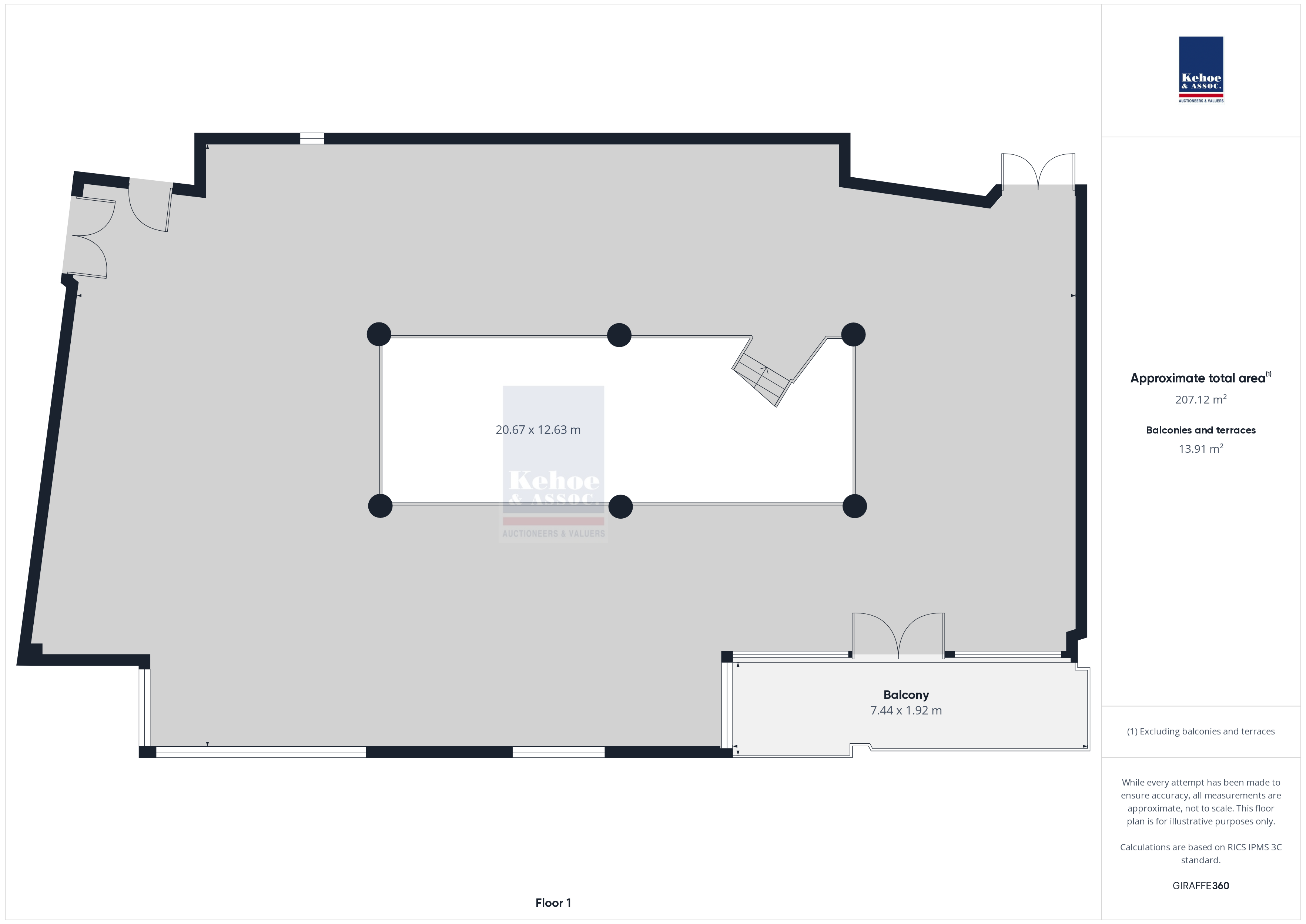
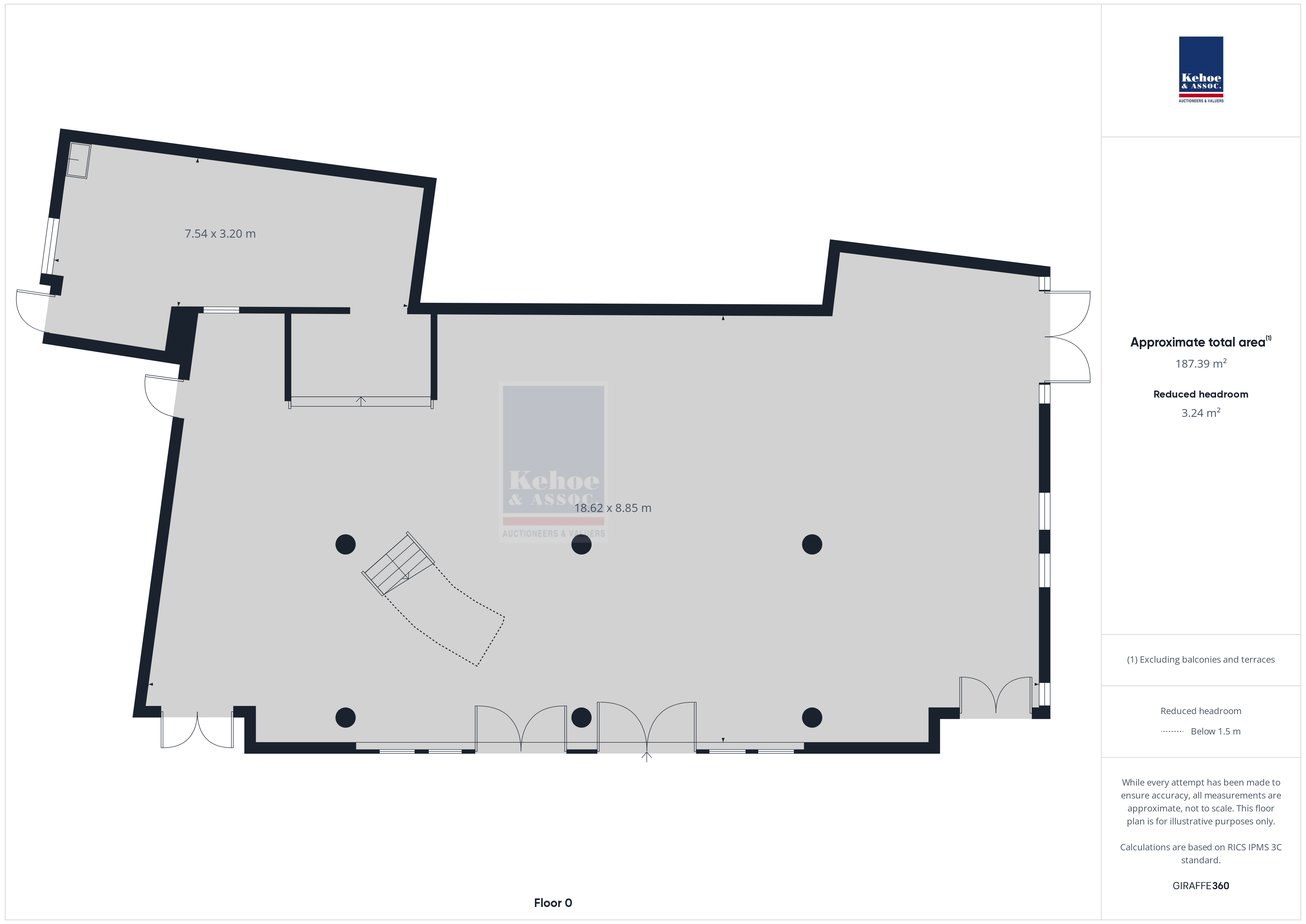
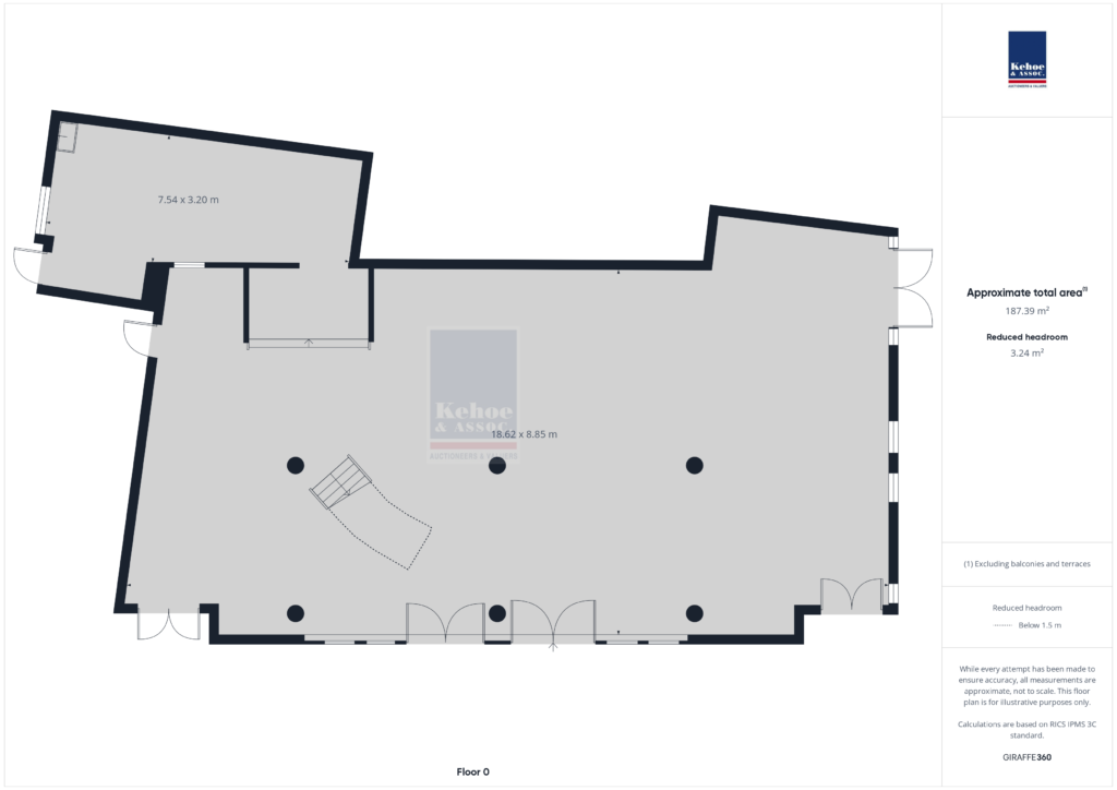
DESCRIPTION: The subject property extends to approximately 450 sq. m and is laid out over ground and first floor. This substantial restaurant premises is presented in good order and could be opened for trading at very little cost. It offers bright and open plan seating areas, including a large balcony area overlooking North main street. It is a very attractive granite fronted building with capacity for many diners and patrons. There is a kitchen area at ground floor level and cold rooms / keg room. There is also at ground floor level a ladies, gents and disabled access w.c.’s. There is a feature wrought-iron staircase to first floor with extensive seating areas and additional ladies / gents w.c.’s adjacent. There is also a ‘dumbwaiter’ from the kitchen serving the first floor. Flooring is presented in good order and there is a secure shutter to the front of the building. This property represents and ideal opportunity for a successful business venture in restaurant trade. It is situated in a prime location, and we highly recommend viewing.
RATES: We understand the Local Authority Rates are in the region of €15,488, with a NAV of 61,220.
