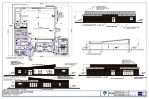
Creche Plan