Located in the sought-after Carriglawn area of Wexford, ‘Kiltanna’ enjoys an exceptional position close to Wexford General Hospital and within walking distance of the town centre. This established residential setting offers excellent access to schools, sports facilities, cafés, supermarkets, and public transport links, making day-to-day living very convenient. Major employers in the wider Wexford area—such as Wexford General Hospital, Wexford County Council, Danone, Waters Technologies, Zurich, and numerous retail and hospitality businesses—are all easily reachable, enhancing the property’s appeal for both homeowners and investors. The combination of strong local employment, a safe family-friendly environment, and proximity to all essential amenities makes this an ideal option for buyers seeking quality, convenience, and long-term value, whether as a comfortable home or a reliable investment property. There is an established childcare facility located close by. Both primary and secondary schools are within easy walking distance.
This impressive three-bed detached residence offers generous living space extending to approximately 148 sq.m and is presented in very good condition throughout. Designed with modern family living in mind, the accommodation is bright, spacious and thoughtfully laid out, allowing for flexibility in how each area is used. Well-proportioned rooms create a warm, welcoming atmosphere from the moment you enter. The ground floor comprises a comfortable living room, ideal for everyday relaxation, together with a fine kitchen and dining area. There are double bi-folding doors leading to the sunroom This open-plan space is perfect for entertaining and family gatherings, with direct access to the extensive patio area outside. Additional ground-floor features may include a utility room, guest WC, and storage areas, depending on the internal layout. The property offers three generous bedrooms, each with good natural light. The main bedroom is well sized and includes an ensuite, while the remaining bedrooms are ideal for family members, guests, or perhaps home-office use. A well-appointed family bathroom serves the upper floor.
Outside, the property continues to impress with private parking to the front and a fully enclosed rear yard. The expansive patio provides a superb outdoor living and dining space, ideal for summer evenings and low-maintenance enjoyment all year-round.
CLICK HERE FOR VIRTUAL TOUR
| Accommodation |
|
|
| Entrance Hallway | 4.22m x 2.23m | With timber floor and storage beneath stairs. |
| Sitting Room | 5.89m (max) x 4.45m | With feature fireplace with marble surround and inset, bay window, timber floors and double doors leading to: |
| Kitchen / Dining Room | 7.21m x 2.46m | With extensive kitchen, wall and floor units, integrated oven, hob, extractor fan, Fisher & Paykel dishwasher, stainless steel sink unit with double drainer, washing ma chine and dryer, tiled floor and splashback. Large linen cupboard in dining area. Double doors to: |
| Sunroom | 3.77m x 3.19m | With tiled floor, timber panelled ceiling and door to outside. |
| Bedroom 1 | 3.44m x 4.08m | With fitted wardrobes. |
| Ensuite | 2.66m x 2.30m | In wetroom format with w.c., w.h.b., walk-in shower with Triton power shower and tiled floor to ceiling. |
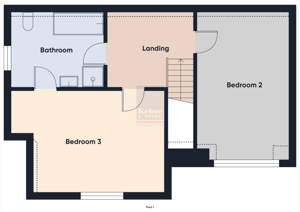
| Staircase to First Floor | ||
| Spacious Landing Area | 3.21m x 2.87m | |
| Bedroom 2 | 5.67m x 3.41m | With storage into eaves. |
| Bedroom 3 | 5.67m (max) x 3.85m | With optional ensuite through bathroom. |
| Bathroom | 3.50m x 2.86m | With w.c., vanity unit with built-in w.h.b., corner shower stall with power shower, jacuzzi bath with tiled surround and tiled floor. |
Total Floor Area: c. 148 sq. m. (c. 1,593 sq. ft.)
Outside
Private enclosed site
Tarmadamed kerbed driveway
Entrance piers
Side access
Extensive patio area in cobblelock
Concrete garden shed.
Services
Mains water
Mains drainage
OFCH
uPVC double
