- Exceptional opportunity to lease this turnkey café premises extending to c. 93 sq.m. / 1,001 sq.ft. with an abundance of parking in close proximity.
- Positioned in an excellent location, high-profile on Redmond Road, directly opposite Dunnes Stores and adjacent to Redmond Square.
- This area sees large volumes of footfall with Wexford Bus station, Wexford railway station and The Arc Cinema on the doorstep.
- Presented in excellent condition and ready for immediate occupancy.
LOCATION:
The subject property is situated at Redmond Square shopping centre directly opposite Dunnes Stores in a high-profile location. Unit 1B, Redmond Square is adjacent to the Arc Cinema with an abundance of parking in close proximity. This location includes Wexford Bus and railway station and sees high volumes of pedestrian and vehicular traffic. It is a highly accessible location close to all amenities. This is a superb opportunity to secure a lease on a premises with an established café use. Rarely does an opportunity such as this present itself in Wexford Town.
DESCRIPTION:
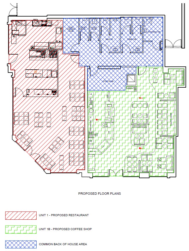
Kehoe & Associates are delighted to present this exceptional opportunity to market. The subject property comprises an open plan café premises extending to c. 93 sq.m. / 1,001 sq.ft. Additionally, the Back of House (BOH) facilities are shared with the occupier of Unit 1A, Redmond Square. The unit has extensive display windows and street frontage. Adjoining occupiers in Redmond Square include: Petstop, Dunnes Stores, The Arc Cinema, McCauleys Pharmacy, Mi Street Food, Hidden Hearing, Wexford Medical Centre, Wexford Bus, etc. The property is presented in excellent order and ready for immediate occupancy. Viewing comes highly recommended.
SERVICES:
Mains water, mains drainage and ESB.
LOCAL AUTHORITY RATES:
The valuation office reference number is 2179262. Net annual Valuation (NAV) of this property is €28,100. The annual rate of valuation (ARV) determined by Wexford County Council in 2025 is 0.253. Therefore, the current annual rate on this premises is €7,109.30.
PLEASE NOTE:
The tenant will be responsible for rates, VAT, insurance, service charges and all usual outgoings.
LEASE TERMS
Flexible lease terms apply.
BACK OF HOUSE (BOH) AREA
Tenant will have the right to use the BOH facilities (excluding the office).
SERVICE CHARGE
2024/2025 Communal Service Charge: €1,703.
Back of House (BOH) Service Charge: €150 per month.
